SIA Vestabalt uzsāk māju tirdzniecību privātmāju ciematā “Mārupes Rezidences”. Tas ir moderns, videi draudzīgs un jaunām ģimenēm piemērots dzīvojamo māju ciemats. Sadarbībā ar arhitektu biroju “MALUS Arhitekti” un godalgoto arhitektu Renāru Putniņu ir izstrādāts niansēts un detaļās pārdomāts dzīvojamā ciemata projekts, īpašu uzmanību pievēršot mājas funkcionālajam plānojumam, katras mājas novietojumam ģenerālplānā, labiekārtojuma elementiem un fasāžu risinājumiem.

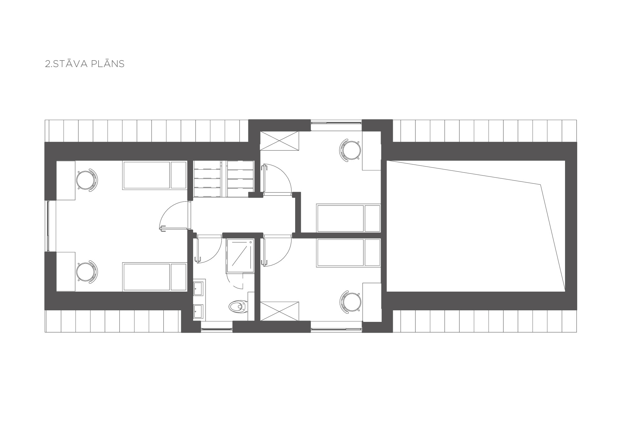
Māju kopējā platība ir 195 m2. Pirmajā stāvā ir plaša dzīvojamā zona, viesu sanmezgls, tehniskā telpa un “master” guļamistaba ar atsevišķu garderobes telpu un vannasistabu. Ēkas otrajā stāvā ir trīs guļamistabas un plašs sanmezgls. Vienu no telpām ēkas otrajā stāvā pēc klientu vēlmēm ir iespēja pārveidot par kabinetu vai garderobi.
Mājai unikālu raksturu, eleganci un plašumu dod ēkas dzīvojamā zonā, kurā ir 5 metru augsti griesti, plaši logi un veramās vitrīnas ar izeju uz terasēm. Māju fasādes ir veidotas divos toņos – brūnā un sudraboti melnā tonī, ko papildinās mājām paredzētais nakts fasāžu apgaismojums. Ēku fasāžu risinājums piešķir kopējam ciematam eleganci, savu unikālo raksturu un šarmu.
Katrai no mājām ir piesaistīts plašs zemes gabals no 800 – 1000 m2. Auto novietošanai pie katras no mājām ir izbūvēta āra nojume.

Arhitekts Renārs Putniņš papildina: “Projekta lielākā pievienotā vērtībā ir tā atrašanās vieta. Mājas ir novietotas pavisam netālu mežam un katrai no mājām ir iespēja baudīt skaistu skatu uz zaļo zonu un izcilu izsauļojumu. Tajā pašā laikā, šī vieta nodrošina attīstītu infrastruktūru.”
Papildus R. Putniņš izceļ veiksmīgo sadarbību ar projekta attīstītāju SIA “Vestabalt”, kas pievērsa niansētu uzmanību visām projekta detaļām. Kopā ar attīstītāju tika rasti labākie risinājumi ēku plānojumam, māju fasādēm, ieejas mezglu risinājumiem, piemeklētas ekskluzīvas mājas ieejas durvis, bet domājot par izsauļojumu, ilgi tika meklēti un atrasti labākie ēku novietojumi katrā no zemes gabaliem.
SIA “Vestabalt” pārdošanas daļas vadītāja Raimonda Omule papildina: “Pēdējos gados Mārupe ir kļuvusi par vienu no lielākajiem, populārākajiem un pieprasītākajiem Pierīgas rajoniem. Tieši Mārupē ir iespēja baudīt zaļu, klusu vidi un justies kā laukos, bet vienlaicīgi baudīt attīstītu infrastruktūru. Pēdējos gados Mārupē ir atvērti jauni bērnudārzi, veikali, kafejnīcas, Mārupes ledus halle, u.c. iestādes un izklaides vietas.”
Arī dzīvojamā ciemata “Mārupes Rezidences” mājas atrodas klusā meža ielokā, bet pie mājām ir pievilktas visas pilsētas komunikācijas, ir asfaltēts ceļš un veloceliņš. Turpat netālu atrodas jaunais bērnudārzs “Mārzemīte” un autobusa pietura.
Pieaugot iedzīvotāju skaitam, Mārupē pieprasījums pēc kvalitatīvām privātmājām pārsniedz piedāvājumu. Tirgū bieži vien tiek piedāvātas tehniski un morāli novecojušas privātmājas par nepamatoti augstu cenu. Šodien aizvien vairāk pircēju izvērtē visus ar mājas turpmāko uzturēšanu un ekspluatāciju saistītos izdevumus, jau laicīgi plānojot, lai tie komfortabli iekļautos ģimenes kopējā budžetā.
“Šajā projektā jau sākotnēji domāts par to, lai ēkas kopējā platība, telpu funkcionalitāte, tehniskie risinājumi nodrošinātu pēc iespējas mazākus ekspluatācijas izdevumus un ēkas uzturēšana būtu ērta ilgtermiņā.”
Projekta attīstītājs SIA “Vestabalt” jau tagad līdz ciematam “Mārupes Rezidences” ir izbūvējis visas pilsētas komunikācijas un ceļus, nodrošinot katrai no mājām autonomu gāzes apkuri, elektrības pieslēgumu, centralizētu ūdens un kanalizācijas padevi.
Mājas ir iespēja iegādāties ar pilnu iekšējo apdari vai arī ar pabeigtu “balto” apdari. Sadarbībā ar interjera dizaineri Annu Djačenko ir piemeklēti kvalitatīvi, eleganti apdares risinājumi, kas vēl vairāk izceļ ēku īpašo raksturu. Pirmajiem māju pircējiem sadarbībā ar “Gaismas Maģija” tiks piemeklētas un uzstādītas īpašas lustras – gaismas ķermeņi, kas īpaši izcels dzīvojamās zonas 5 metru augstos griestus.
Šī ēka ir projektēta kā tradicionālas formas koka karkasa stāvbūve mūsdienīgā izpildījumā. Mājas norobežojošās konstrukcijās kā siltumizolācija ir izmantotas kokšķiedras plātnes un kokšķiedras vate vai ekovate. No iekšpuses sienas apdari veido kaļķa apmetums, ko plaši izmantoja “pirmsreģipša” laikmetā. Tas ir grūtāk uzklājams, toties ļauj telpas mitrumam dabiski migrēt caur sienām, tādejādi līdzsvarojot mikroklimatu istabās bez papildu ventilācijas.
Pirmās mājas plānots nodot ekspluatācijā jau 2019. gada novembrī, decembrī.
Piesaki apskati pie SIA “Vestabalt” pārdošanas daļas vadītājas Raimondas Omules! Tālrunis: 26525588, e-pasta adrese: raimonda.omule@vestabalt.lv.
SIA Vestabalt uzsāk māju tirdzniecību privātmāju ciematā “Mārupes Rezidences”. Tas ir moderns, videi draudzīgs un jaunām ģimenēm piemērots dzīvojamo māju ciemats. Sadarbībā ar arhitektu biroju “MALUS Arhitekti” un godalgoto arhitektu Renāru Putniņu ir izstrādāts niansēts un detaļās pārdomāts dzīvojamā ciemata projekts, īpašu uzmanību pievēršot mājas funkcionālajam plānojumam, katras mājas novietojumam ģenerālplānā, labiekārtojuma elementiem un fasāžu risinājumiem. Māju …




