
ELEGANTA PRIVĀTMĀJA EKSKLUZĪVAJĀ "BIT OF SWISS" CIEMATĀ PIE MAŠĒNU EZERA
Iespēja iegādāties jaunu, dzīvošanai pilnībā gatavu privātmāju ar skatu uz ezeru ekskluzīvajā "Berģu Skatu" ciematā "Bit of Swiss". Īpašums atrodas Mašēnu ezera 2. līnijā - skaistā, mierpilnā, priežu ieskautā teritorijā ar Šveicei raksturīgu vidi un šarmu. Šī būs ideāla dzīvesvieta tiem, kas vēlas baudīt mierīgu dzīvi dabā vienlaikus atrodoties tikai īsa brauciena attālumā no Rīgas centra.
GALVENIE PARAMETRI
- Zemes platība: 1339 m²
- Mājas kopējā platība: 301 m²
- Dzīvojamā platība: 134 m²
- Stāvu skaits: 2
- Istabas: 5
- Guļamistabas: 3
- Vannas istabas: 1
- Tualetes: 2
- Garāža: 1 automašīnai
- Nodota ekspluatācijā: 2024. gadā
PRIEKŠROCĪBAS
- Miers un klusums pie ezera tikai 25 min. brauciena attālumā no Rīgas centra.
- Labiekārtota vide - bruģēti ceļi un ietves, ielu apgaismojums, laivu piestātne, pludmale, peldvieta, volejbola un bērnu rotaļu laukums.
- Droša teritorija, norobežota ar iebraukšanas barjerām un uzraudzīta ar videonovērošanas kamerām.
- Dzīvošanai pilnībā gatava māja, aprīkota ar visu nepieciešamo sadzīves tehniku, elektrisko kamīnu un pamata mēbelēm.
- Trīs terases ar skatu uz ezeru un atvērta dzīves vide.
- Daudz dienasgaismas, pateicoties lielajiem logiem un stiklotajām durvīm.
- Apsildāmās grīdas un moskītu tīkli logiem un durvīm visā mājā.
- Elektriski vadāmi slēģi - papildu drošība, energoefektivitāte, aizsardzība pret laikapstākļiem un pilnīga telpu aptumšošanas iespēja.
- Skaisti iekopts piemājas zāliens un apstādījumi ar laistīšanas sistēmu.
- Iespēja, izmantojot privāto ūdens transportu, nokļūt no Mašēnu ezera līdz pat Baltijas jūrai.
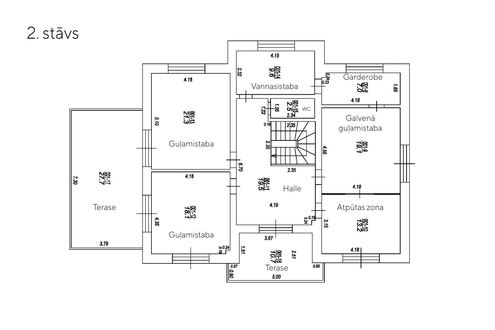
MĀJAS PLĀNOJUMA APRAKSTS
1. stāvs
- Priekšnams ar iebūvētu skapi
- Dzīvojamā istaba un virtuve (apvienotas)
- Kabinets
- Tualete
- Saimniecības telpa ar izeju uz pagalmu
- Garāža vienai automašīnai
- Terase
2. stāvs
- Trīs guļamistabas (galvenajai guļamistabai ir atpūtas zona ar skatu uz ezeru, iebūvēts skapis ar izlietni, kā arī garderobe blakus telpā)
- Vannas istaba, aprīkota ar vannu, dušas kabīni un divām izlietnēm
- Tualete (atsevišķi)
- Halle
- Piekļuve mantu glabātuvei bēniņos
- Divas terases
ATRAŠANĀS VIETA UN PIEEJAMĪBA
- Ciemats "Bit of Swiss" atrodas Rīgas pievārtē - Berģos.
- Ciematam ir labi izbūvēti ceļi un regulāra sabiedriskā transporta kustība, kas nodrošina ērtu piekļuvi tuvējām pilsētām un apkārtējai infrastruktūrai.
- Attālums līdz Rīgas centram ir aptuveni 15 km, kas ļauj sasniegt pilsētas centru ar automašīnu 25 minūtēs.
- Līdz Rīgai iespējams nokļūt arī ar privāto ūdens transportu.
- Attālums līdz tirdzniecības centram "Alfa" - 9,8 km, līdz "Sāgai" un "IKEA" - 9 km.
- Berģu Mūzikas un mākslas pamatskola - 2,3 km, privātie bērnudārzi - 4 km attālumā.
Izvēloties "Bit of Swiss" par savu dzīvesvietu jūs iegūsiet mūsdienīgu un komfortablu dzīves vidi pie ezera apvienojumā ar ātru un ērtu piekļuvi Rīgai.
Sazinieties ar mums, lai uzzinātu vairāk un vienotos par apskates laiku!