Piedāvājam iegādāties trīs apbūves zemesgabalus pašā Carnikavas centrā ar saskaņotu MBP daudzdzīvokļu māju apbūvei.
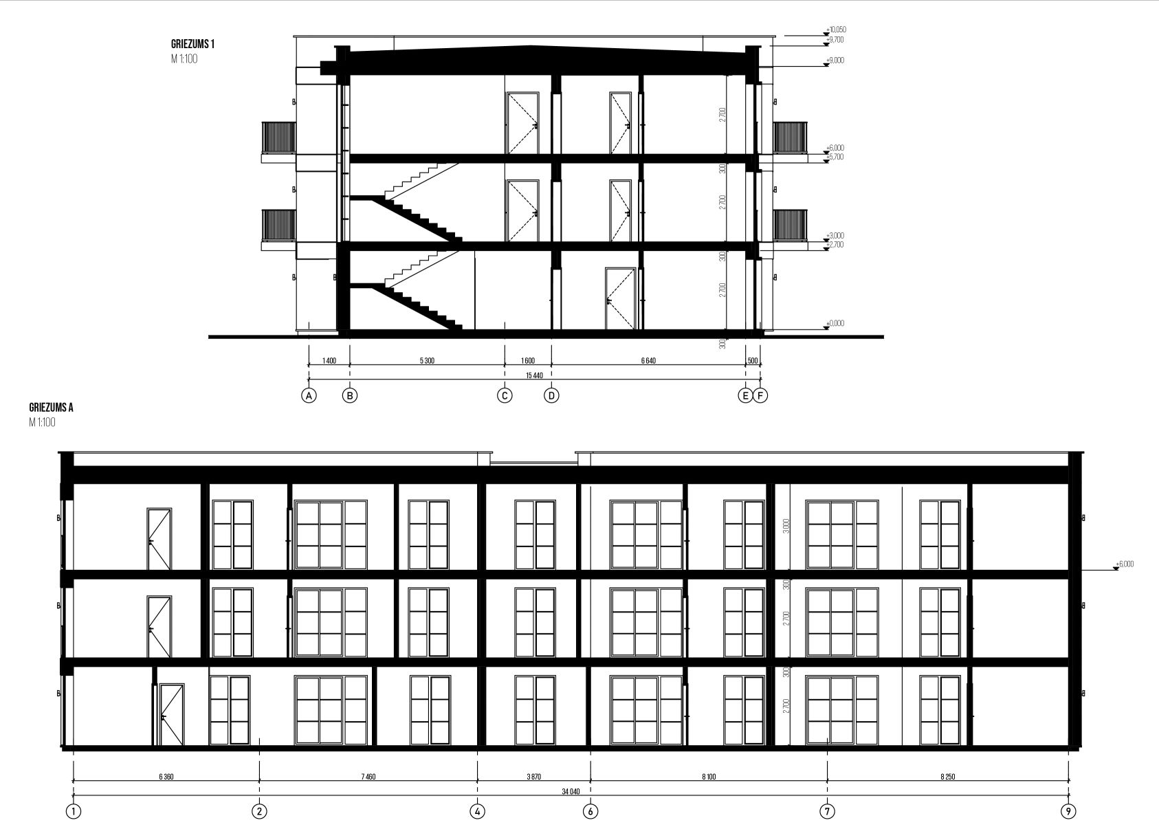
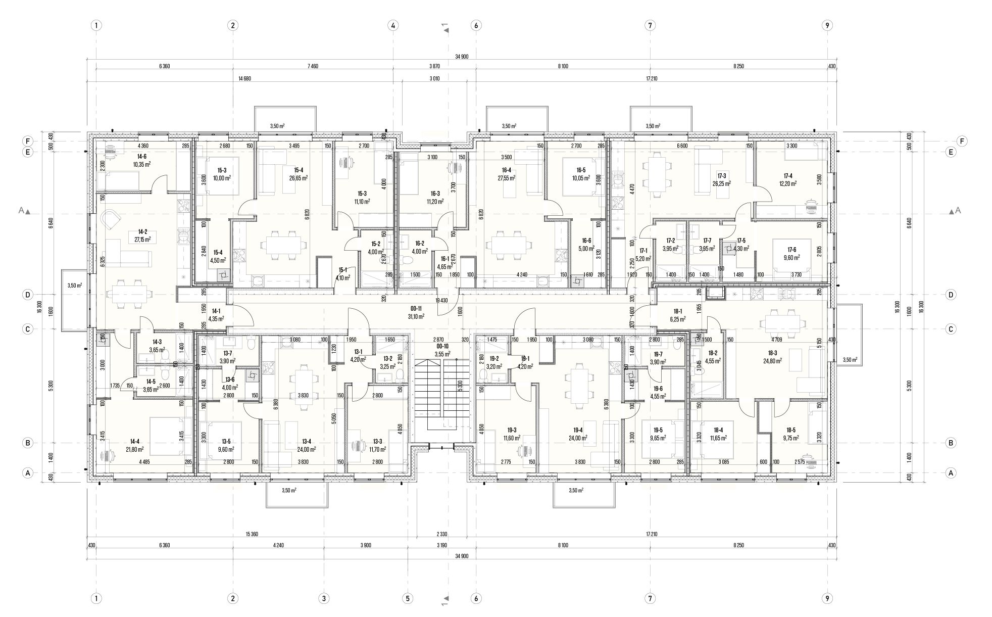
Projekts paredz trīs ēku apbūvi ar kopējo platību 3524, 31 m2, no kuriem 44 dzīvokļu platība sastāda 3005 m2, ar 73 virszemes autostāvvietām.
Maksimāli atļautā stāvu apbūve: 3 stāvi. Maksimālais apbūves augstums: 12 metri.
Pieejamas visas pilsētas komunikācijas.
Zemesgabalu kadastra numuri: 80520040001 ; 80520040090 ; 80520040089.
Atrašanās vieta: Īpašums atrodas stratēģiski izdevīgā vietā pie Vecgaujas, ar piekļuvi īpašumam no Jūras ielas un iekšpagalma pusēm.
Papildu informācija (GP, AR un 3d modelis) pēc pieprasījuma.

Piedāvājam iegādāties trīs apbūves zemesgabalus pašā Carnikavas centrā ar saskaņotu MBP daudzdzīvokļu māju apbūvei.
Projekts paredz trīs ēku apbūvi ar kopējo platību 3524, 31 m2, no kuriem 44 dzīvokļu platība sastāda 3005 m2, ar 73 virszemes autostāvvietām.
Maksimāli atļautā stāvu apbūve: 3 stāvi. Maksimālais apbūves augstums: 12 metri.
Pieejamas visas pilsētas komunikācijas.
Zemesgabalu kadastra numuri: 80520040001 ; 80520040090 ; 80520040089.
Atrašanās vieta: Īpašums atrodas stratēģiski izdevīgā vietā pie Vecgaujas, ar piekļuvi īpašumam no Jūras ielas un iekšpagalma pusēm.
Papildu informācija (GP, AR un 3d modelis) pēc pieprasījuma.