
Iznomā komerctelpas Rīgas centrā, Elizabetes ielā 89. Telpas atrodas ērtā vietā blakus sabiedrisko transporta pieturvietām, centrālajai stacijai un tirdzniecības centram Origo.
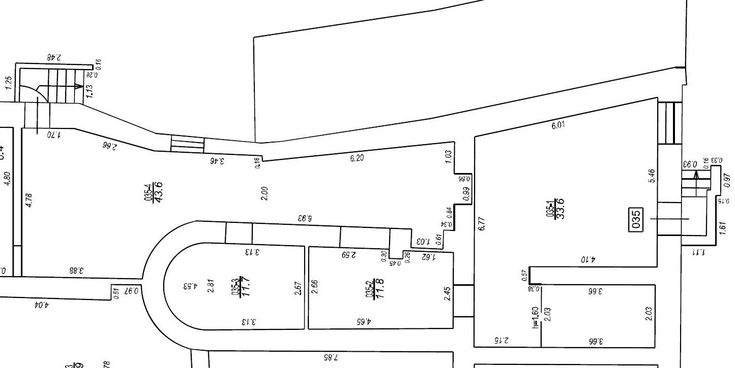
Telpas atrodas renovētas ēkas pagrabstāvā ar kopēju platību 100 m2. Telpām ieeja no ēkas fasādes Elizabetes ielā, gan arī otra ieeja no ēkas pagalma. Par papildus samaksu ēkas pagalmā iespējams nomāt stāvvietu automašīnai (tajā skaitā arī elektroautomašīnai ar uzlādes staciju) vietu.
Telpām nepieciešams kosmētiskais remonts.
Telpas piemērotas veikala, darbnīcas, salona, galerijas, mantu glabātuves, kafejnīcas (bez ēst gatavošanas), ziedu salona vajadzībām.
Slēdzot līgumu, jāiemaksā drošības depozīts divu nomas mēnešu apmērā. Minimālais nomas termiņš 1 gads.
Papildu jāmaksā par apsaimniekošanu un komunālajiem pakalpojumiem.
Papildu informācija pēc pieprasījuma.