
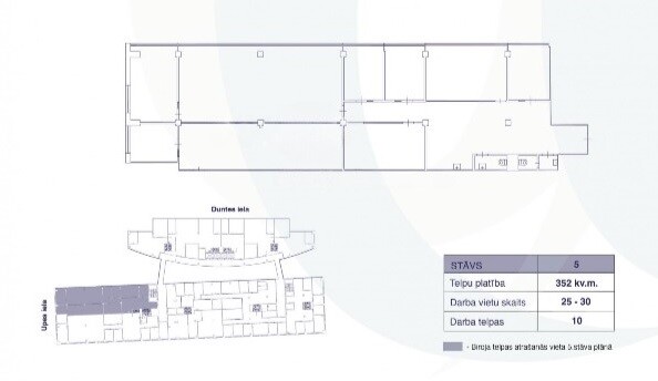
"Duntes biroji" ir viens no spilgtākajiem spēlētājiem Skanstes biznesa rajonā – tā ir biroju ēka, kas ieguvusi BREEAM sertifikātu, apliecinot ēkas ilgtspējību un energoefektivitāti. Biroju komplekss sastāv no divām savienotām septiņstāvu ēkām ar četriem liftiem, kas nodrošina ātru un ērtu piekļuvi visiem stāviem. Pateicoties modulārajam principam, biroja telpu plānojumu var viegli mainīt un pielāgot īrnieku individuālajām prasībām. Ēkas ieeju veido iespaidīgs stikla atrijs, kas piepilda telpas ar dabīgo gaismu un rada iedvesmojošu atmosfēru darba produktivitātei. Ēkas koncepciju izstrādājis pazīstamais somu arhitekts Tuomu Siitonen, un "Duntes biroji" ir saņēmuši balvu nominācijā "Labākā biroju ēka." "Duntes biroji" ir izvēlējušies īrnieki ar nevainojamu reputāciju, tādi kā "Circle K," "Samsung," "McDonald's" un citas kompānijas. - 24 stundu apsardze; - Konsjerža pakalpojumi; - Pazemes un virszemes stāvvieta + elektrouzlādes stacija; - Pusdienu restorāns Noonbox; - Nomas maksa: 10,5 EUR/m2; - Papildu izmaksas: apsaimniekošanas maksa 2 EUR/m2, nekustamā īpašuma nodoklis un komunālie maksājumi.