В самом центре Павилосты, на улице Кална, продается очаровательный объект недвижимости. Он состоит из двух зданий и расположен на самой высокой точке Павилосты, откуда с террасы открывается прекрасный вид на море и крыши домов. Общая площадь земельного участка составляет 996 м², он граничит с двумя соседними участками, а также с улицей Кална и парком Павилоста-Пьечдесмитгадес.
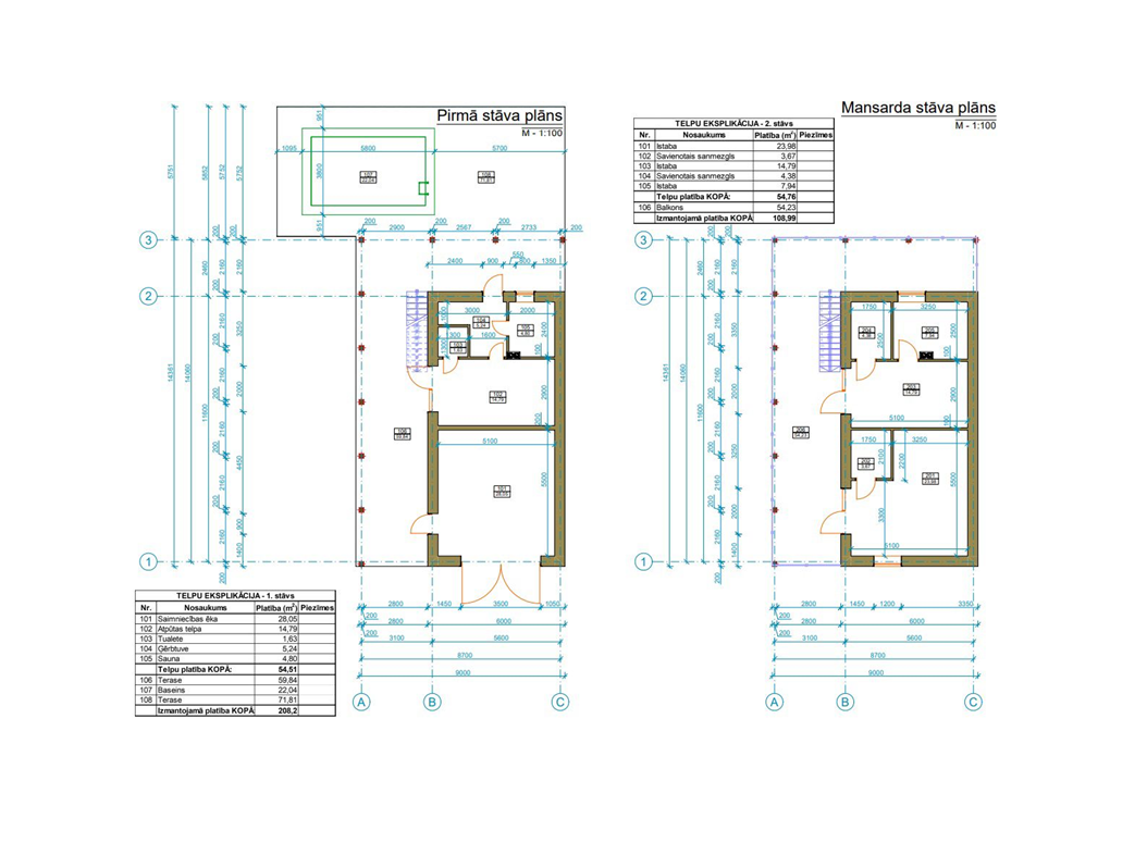
Самое темное здание на фотографиях было полностью отремонтировано и адаптировано к современным требованиям, превратившись в жилой дом с жилой площадью 81 м² и большим гаражом или подсобным помещением площадью 28 м². На первом этаже расположены гостиная и кухня с выходом во двор и на просторную террасу. Также на первом этаже находятся туалет, душевая и дровяная сауна. На третьем этаже расположены 3 спальни и две ванные комнаты.
На фотографиях изображен дом из светлого кирпича, представляющий собой полноценный жилой дом. Площадь первого этажа составляет 70 м², и на нем расположены три спальни, гостиная, кухня и ванная комната. Здание полностью пригодно для проживания, имеет все необходимые коммуникации и возможность надстройки второго этажа.
В конце улицы Кална, всего в 400 метрах от дома, находится пляж и недавно благоустроенная центральная площадь с кафе и смотровой башней. Волшебство Павилостаса заключается в том, что в этом очаровательном городе есть природа, прекрасное море и замечательные люди, а также хорошие рестораны, кафе и активная культурная жизнь.
Этот объект недвижимости станет отличным инвестиционным приобретением и прекрасным семейным домом в всегда очаровательном и востребованном районе Павилоста.
В самом центре Павилосты, на улице Кална, продается очаровательный объект недвижимости. Он состоит из двух зданий и расположен на самой высокой точке Павилосты, откуда с террасы открывается прекрасный вид на море и крыши домов. Общая площадь земельного участка составляет 996 м², он граничит с двумя соседними участками, а также с улицей Кална и парком Павилоста-Пьечдесмитгадес.
Самое темное здание на фотографиях было полностью отремонтировано и адаптировано к современным требованиям, превратившись в жилой дом с жилой площадью 81 м² и большим гаражом или подсобным помещением площадью 28 м². На первом этаже расположены гостиная и кухня с выходом во двор и на просторную террасу. Также на первом этаже находятся туалет, душевая и дровяная сауна. На третьем этаже расположены 3 спальни и две ванные комнаты.
На фотографиях изображен дом из светлого кирпича, представляющий собой полноценный жилой дом. Площадь первого этажа составляет 70 м², и на нем расположены три спальни, гостиная, кухня и ванная комната. Здание полностью пригодно для проживания, имеет все необходимые коммуникации и возможность надстройки второго этажа.
В конце улицы Кална, всего в 400 метрах от дома, находится пляж и недавно благоустроенная центральная площадь с кафе и смотровой башней. Волшебство Павилостаса заключается в том, что в этом очаровательном городе есть природа, прекрасное море и замечательные люди, а также хорошие рестораны, кафе и активная культурная жизнь.
Этот объект недвижимости станет отличным инвестиционным приобретением и прекрасным семейным домом в всегда очаровательном и востребованном районе Павилоста.