
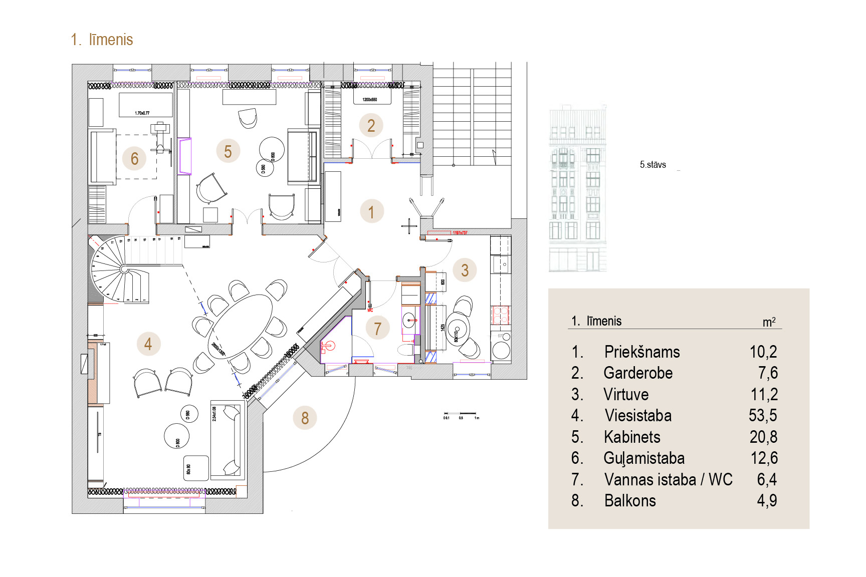
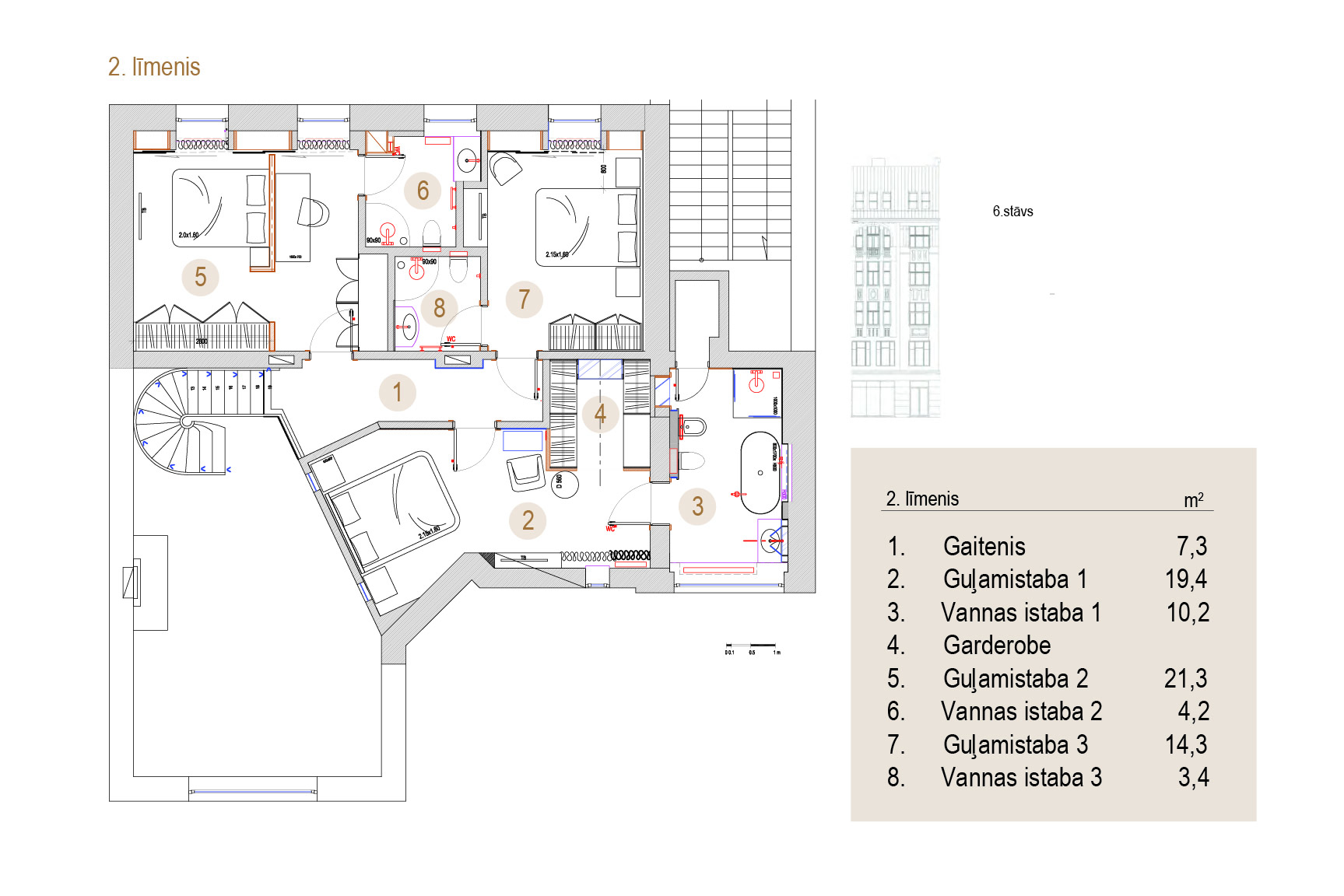
ИЗЫСКАННАЯ ДВУХУРОВНЕВАЯ МАНСАРДНАЯ КВАРТИРА С РОСКОШНЫМ БАЛКОНОМ Предлагаем приобрести изысканную двухуровневую мансардную квартиру с утонченным интерьером в классическом стиле, тщательно продуманной планировкой и максимальным комфортом. Квартира выделяется особенно просторной гостиной с потолками высотой шесть метров, впечатляющим декоративным круглым окном, биокамином, а также роскошным озеленённым балконом с великолепным видом на шпиль старой церкви Святой Гертруды и крыши окрестных домов. В квартире четыре спальни — три из них с собственными ванными комнатами, а также уютный кабинет с библиотекой и камином — место, где можно насладиться тишиной и укрыться от повседневной суеты. ОСНОВНЫЕ ПАРАМЕТРЫ - Общая площадь квартиры: 208 м² - Жилая площадь: 142 м² - Балкон: 5 м² - Комнат: 6 - Спальни: 4 - Ванные комнаты с туалетом: 4 - Этаж: пятый и шестой (в шестиэтажном доме) - Парковка: в закрытом дворе дома РЕНОВАЦИЯ В 2023 году в квартире был проведен комплексный капитальный ремонт: полностью заменены конструкции пола и покрытие, утеплены стены, в том числе звукоизоляция. Также полностью отремонтирована крыша. Установлены энергоэффективные деревянные окна с тройным остеклением и повышенной звукоизоляцией. У здания отреставрирован фасад, отремонтирована лестничная клетка, выполнена реконструкция балконов и другие улучшения. ИНТЕРЬЕР Стены и полы квартиры отделаны итальянским мрамором, изготовленным на заказ. В комнатах постелен высококачественный паркет. В гостиной установлена лестница из отборной древесины. Комнаты обставлены дизайнерской мебелью люксового бренда DOM Edizioni и светильниками Bella Figura. В ванных комнатах установлена качественная сантехника включая латунные смесители Zucchetti. Кухня оборудована первоклассной кухонной техникой и мраморной столешницей. Квартира продается с мебелью (картины и аксессуары не продаются). ИНЖЕНЕРНЫЕ РЕШЕНИЯ В квартире установлена автономная газовая система отопления, которая обеспечивает отопление и горячее водоснабжение. Вода очищается фильтрами Zepter, на кухне дополнительно установлен питьевой кран со специальным фильтром. Климат в помещении обеспечивает комплексная система вентиляции, кондиционирования и фильтрации воздуха с рекуперацией. БЕЗОПАСНОСТЬ В квартире установлены двойные входные двери (oдна из них — металлическая), домофон, а также система сигнализации и противопожарная система, подключённые к охранной фирме. Закрытый внутренний двор, кодовые замки на воротах и входной двери в дом. В подъезде и во дворе ведется видеонаблюдение. Доступны услуги консьержа. ОПИСАНИЕ ПЛАНИРОВКИ 1-й уровень - Коридор - Гардеробная - Кухня - Гостиная - Кабинет с библиотекой - Гостевая спальня - Ванная комната с туалетом - Балкон 2-й уровень - Три спальни (в главной спальне есть встроенный шкаф) - Три ванные комнаты с туалетом (в главной ванной комнате есть ванна, душевая кабина, туалет, биде и раковина, а также большое декоративное полукруглое окно) - Kоридор ЛОКАЦИЯ Квартира расположена в историческом здании в центре Риги, на перекрестке улиц Лачплеша и Сколас, на стороне двора. Расположение квартиры обеспечивает удобный доступ к различным культурным, развлекательным и досуговым возможностям. Район идеально подходит для тех, кто ценит динамику центра города и легкий доступ ко всем необходимым удобствам. Cвяжитесь с нами для получения дополнительной информации и организации просмотра.