
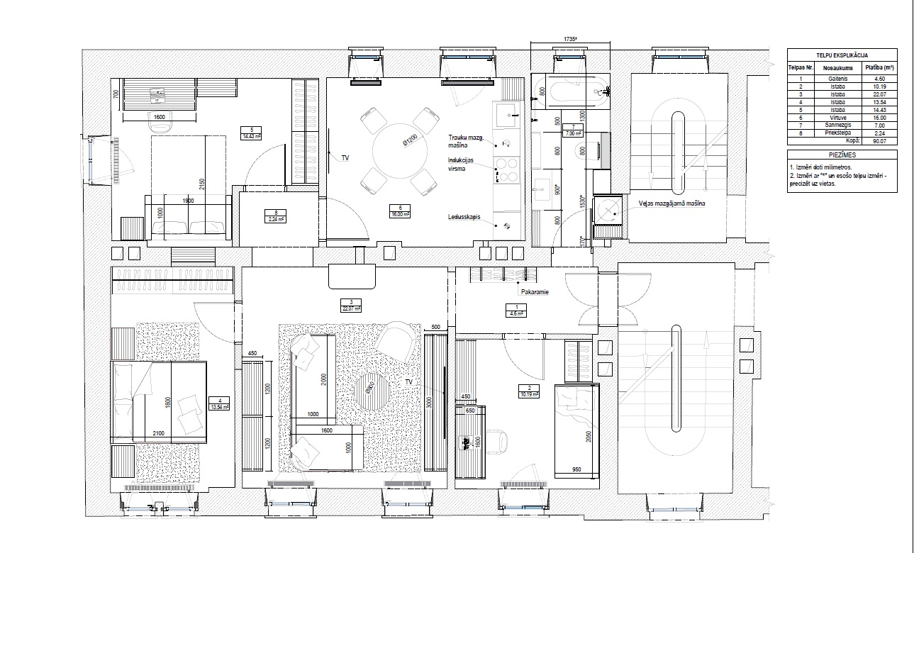
Продаётся квартира в доме во дворе, по адресу ул. Элизабетес, 27. Квартира без отделки, строительный мусор вывезен, создан новый, оптимизированный проект планировки, согласно которому можно обустроить просторную гостиную, уютную кухню с действующей изразцовой печью и три спальни. Недвижимость станет отличным выбором для тех, кто ценит очарование тихого центра и хочет жить в непосредственной близости от повседневных событий. У недвижимости идеальное расположение: всего за несколько минут можно добраться до любого из лучших ресторанов и зон отдыха в тихом центре Риги. Поблизости находятся различные рестораны, кафе, бары, магазины, школы, детские сады, медицинские учреждения и другие объекты инфраструктуры. В шаговой доступности парки: парк Кронвальда, парк Эспланады и Виестурдарзс, различные спа-салоны, квартал Андрейостас.