Задай нам вопрос: +371 28308777
0
В ваш список избранного нет добавленных объектов
Ваш список избранных 0 объект/-ы

/мес.
ID 20281
Город Rīga
Место Centrs
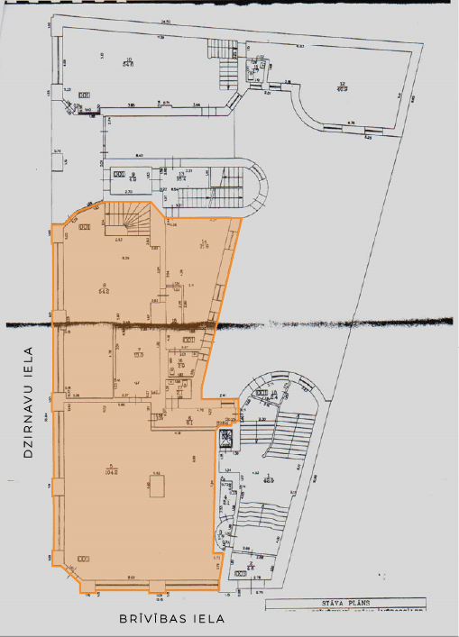
Улица Brīvības 33
Площадь 352 m2
Количество комнат 18
Этаж 1/5
Цена за m2 € 25.07
Цена € 8 825 /мес.
Предлагаем в аренду представительские коммерческие помещения в активном центре Риги, на углу улиц Бривибас и Дзирнаву - улица Бривибас 33.
Общая доступная площадь составляет 353 м², из которых 210 м² расположены на первом этаже и 143 м² — в подвале. Помещения на первом этаже отличаются красивыми, впечатляюще большими окнами и потолками высотой 5 метров, что обеспечивает отличное естественное освещение и прекрасную видимость с улицы. Широкий фасад и интенсивный пешеходный и транспортный поток создают идеальные условия для магазина, салона красоты, клиники, студии, офиса или других коммерческих проектов.
Коммерческие помещения по адресу улица Бривибас, 33, подходят для размещения ресторана, салона красоты, торговой точки, салона дизайна интерьеров или другого предприятия общественного питания. Подвальные помещения могут быть использованы под склад, дополнительную торговую зону, отдел обслуживания клиентов или технические помещения, обеспечивая таким образом функциональную и гибкую планировку для компаний различных отраслей.
Помещение подходит для размещения ресторана (общепита), салона красоты, магазина, салона дизайна интерьеров или медицинского учреждения.
Арендная плата составляет 25 евро/м², плюс НДС, ежемесячные коммунальные платежи и плата за управление.
Улица Бривибас — одна из главных артерий Риги, соединяющая центр города с другими районами и обеспечивающая непрерывный поток людей в течение всего дня. Это делает данное место отличным выбором для предпринимателей, предъявляющих высокие требования к видимости, престижу и доступности, что является гарантией успешного ведения бизнеса.