
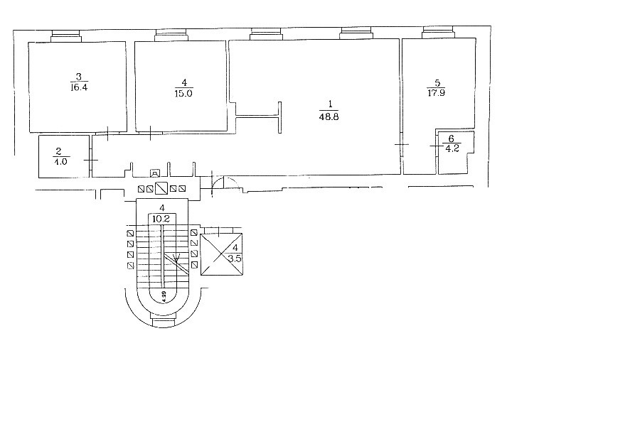
A spacious, Art Nouveau four-room apartment after renovation in the quiet center of Riga, in a renovated facade building. The apartment is located on the 4th/6th floor of the building. New elevator. Layout of the apartment: hall, spacious living room with isolated kitchen area, master bedroom with separate bathroom, 2 bedrooms, bathroom, utility room. Folds and historical cornices are preserved in the ceiling of the apartment, individual autonomous heating - Viessmann gas boiler, high ceilings. The windows overlook a landscaped courtyard. Lockable stairwell with code, closed yard. Video surveillance installed for security. The house is located in the embassy district, next to the place where the best Riga restaurants are open, Kronvalda Park and Viesturdārzs, 10 minutes' walk to Old Riga.