
Iznomā komerctelpas restaurētā eklektisma stilā namīpašumā ar lielisku atrašanās vietu Rīgas klusajā centrā – Pulkveža Brieža ielā 10.
Tuvumā atrodas skola, sabiedriskā transporta pietura, dzīvā Dzirnavu iela, labākie restorāni un vēsturiskais centrs ar skaistajām Alberta un Strēlnieku ielām.
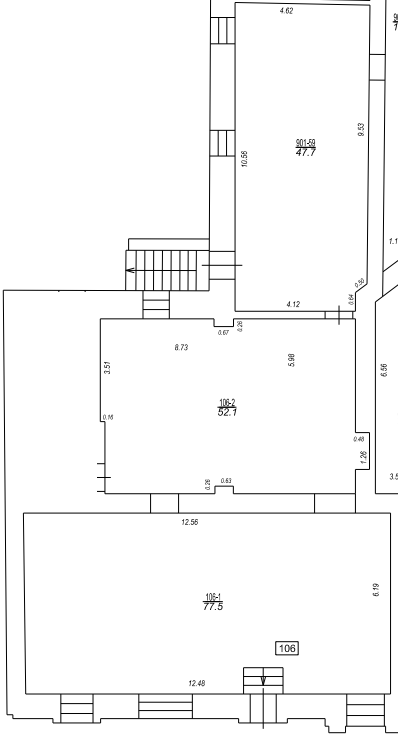
Telpas atrodas fasādes ēkas pagrabstāvā, kopējā platība – 177,3 m².
Ir atsevišķa ieeja no Pulkveža Brieža ielas puses, kā arī no iekšpagalma.
Lieliski piemērotas birojam, veikalam, darbnīcai, galerijai, noliktavai, kafejnīcai (bez ēdiena gatavošanas uz vietas) vai skaistumkopšanas salonam.
Nomas maksa: 1400 EUR + PVN,
papildus jāmaksā komunālie maksājumi.
Papildu informācija pēc pieprasījuma.